Spis treści
CZY WIESZ, ŻE ….
… możesz w GstarCAD tak ustawić opcje drukarki, aby po wydrukowaniu pliku CAD do PDF przy
pomocy wbudowanej drukarki DWG to PDF pliki wynikowe otwierały się automatycznie
a co najważniejsze przenosiły warstwy do PDF’a?
Wejdź we WŁAŚCIWOŚCI DRUKARKI podczas drukowania swojego projektu (Okno 1.)
Następnie przejdź do WŁAŚCIWOŚCI NIESTENDARDOWYCH … (Okno 2.)

… i ustaw parafki w polach (Okno 3.):
– INCLUDE LAYER INFORMATION – zawrzyj informację o warstwach
– OPEN IN PDF VIEWER WHEN DONE – otwórz w PDF viewer kiedy gotowy
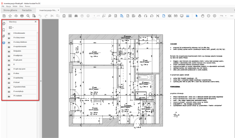
Po wydrukowaniu pliku do formatu PDF otworzy się on automatycznie w Twoim programie do
odczytu tego typu plików oraz będzie zawierał warstwy rysunkowe przeniesione z GstarCAD’a.

Teraz już bezpośrednio w pliku PDF możesz sterować widocznością warstw.