GstarCAD 2025 duce performanța la următorul nivel cu accelerarea hardware și alte îmbunătățiri care vă îmbunătățesc experiența de proiectare. Noile funcții includ constrângeri parametrice, editarea datelor BIM și note vocale. În plus, a fost introdus suportul Python, permițând personalizare și automatizare mai extinsă.
Îmbunătățirea performanței
GstarCAD 2025 introduce un mecanism de salvare incrementală, crescând viteza SAVEAS cu peste 30% și QSAVE de peste trei ori. Citirea fișierelor, afișarea și inițializarea software-ului au fost, de asemenea, optimizate, îmbunătățind viteza medie de deschidere a desenului cu peste 25%. Performanța funcțiilor TRIM și EXTEND pe desene complexe a fost îmbunătățită cu aproximativ 69%, iar precizia afișajului HATCH a fost îmbunătățită prin eliminarea liniilor redundante în gradient și umpleri transparente, oferind un flux de lucru mai eficient.

Îmbunătățirea DIM
Nu mai trebuie să comutați între diferite comenzi pentru a crea diferite tipuri de dimensiuni.
Pentru a simplifica procesul de adnotare și pentru a crește eficiența, utilizați pur și simplu comanda DIM. Plasați cursorul peste obiecte pentru a previzualiza dimensiunea, apoi faceți clic pentru a confirma și a plasa dimensiunea.

Import și export îmbunătățit de modele 3D
Pe baza fișierelor IFC importate, GstarCAD vă permite acum să exportați fișiere IFC și să importați fișiere RVT cu date BIM complete. În plus, modulul STEP/IGES este acum inclus în programul de instalare GstarCAD și nu necesită instalare separată.

Îmbunătățirea barei de file Fișier și aspect
Bara de file File and Layout din GstarCAD 2025 a fost actualizată cu un nou aspect. Butoanele „Nou” și „List” au fost adăugate, astfel încât acum puteți crea, deschide și comuta între desene/aspecte direct din bara de marcaje. În plus, indicatorii pentru fișierele care sunt „Numai citire” sau „Modificate” au fost adăugați pentru a oferi vizibilitate clară a stării.

Upgrade – lasso
Selecția Lasso vă permite să creați o zonă sau un set de selecție neregulat, ceea ce este benefic atunci când selectați obiecte în desene complexe. Selectarea ferestrelor a fost, de asemenea, optimizată prin adăugarea opțiunilor Fence, Window Polygon și Intersecting Polygon.

Upgrade – Anulați
În GstarCAD 2025, operațiunile de zoom, pan și straturi pot fi anulate într-un singur pas, simplificând fluxul de lucru și reducând acțiunile repetitive.

Imprimare în vrac îmbunătățită
Funcția de imprimare în loturi din GstarCAD 2025 a adus îmbunătățiri cuprinzătoare pe baza feedback-ului utilizatorilor pentru a sprijini o gamă mai largă de scenarii. Există 11 actualizări majore disponibile, inclusiv opțiuni de configurare pentru lot, grafic, fișier și procesare, oferind o reprezentare mai eficientă și mai flexibilă.

Îmbunătățirea codului QR
Comanda QRCODE acceptă acum modul de linie de comandă -QRCODE, facilitând crearea de coduri QR prin scripturi sau programe.

Îmbunătățirea managerului de licență
GstarCAD 2025 introduce actualizări pentru a îmbunătăți gestionarea și securitatea licențelor, cum ar fi: notificarea de expirare a abonamentului, afișarea numărului de utilizator în Network License Manager și upgrade pentru dongle USB Moway.

Nouă accelerare grafică
GstarCAD 2025 oferă acum accelerare grafică, care valorifică capacitățile de procesare grafică ale GPU-ului dedicat pentru a ajuta procesorul să îndeplinească sarcini mai eficient. Această actualizare îmbunătățește semnificativ calitatea afișajului grafic și accelerează munca, crescând performanța generală a software-ului.

Noi legături parametrice
Constrângerile parametrice gestionează relațiile dintre obiecte, permițând altor elemente să se ajusteze automat atunci când se fac modificări. De asemenea, limitează modificările la valorile distanței și unghiului, asigurând precizia designului.

Noua editare a datelor BIM
Datele BIM pot fi acum editate direct în GstarCAD 2025, oferind o eficiență sporită fluxului de lucru de proiectare!

Nou suport nativ pentru mouse 3D
Mouse-urile 3Dconnexion SpaceMouse și CadMouse sunt acum acceptate nativ în GstarCAD 2025. Cu joystick-ul controlerului, puteți manipula vizualizări 2D și perspective 3D, puteți schimba vizualizările și executa comenzi folosind tastele rapide ale mouse-ului. De asemenea, este posibil să personalizați configurația butonului mouse-ului în software-ul driver pentru aceste dispozitive..

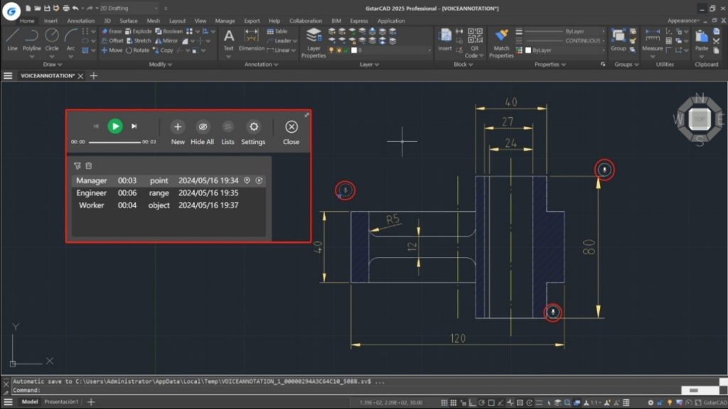
Noi note vocale
Acum puteți adăuga comentarii vocale la desene în GstarCAD 2025. Prin panoul Manager vocal, puteți crea, înregistra, reda și gestiona cu ușurință notele vocale.

Nou – Oprire la punct
Comanda BREAKATPOINT vă permite să împărțiți obiectul selectat în două la un punct specificat și să creați un spațiu, spre deosebire de funcția BREAK.

Unități DWG noi
GstarCAD 2025 vă permite să schimbați unitățile de desen pentru a îndeplini cerințele standard de dimensiune și adnotare și pentru a preveni erorile cauzate de utilizarea diferitelor unități.

Manager de aplicații nou
Application Manager este un sistem integrat de gestionare a pluginurilor. Vă permite să căutați, să activați/dezactivați și să răsfoiți aplicații, permițându-vă să obțineți cea mai adecvată configurație a serviciului cu o utilizare minimă a resurselor.
